"LA CULTURE EN PARTAGE" avec
Frédéric MORIN architecte-conférencier

Histoires d'architectures bioclimatiques

À la fois dedans et dehors, la fluidité de l'espace.
L'architecture moderne en chemin vers une belle architecture adaptée au réchauffement climatique
La villa Savoye à Poissy
par Le Corbusier en 1931

Voici une partie du diaporama proposé par Frédéric Morin, architecte-conférencier, sur l'histoire de la capacité des maisons modernes puis contemporaines de faire face au réchauffement climatique, par la fluidité des espaces entre dedans et dehors, ou « à la fois dedans et dehors », depuis 1900 jusqu'à 2020 :
En théâtralisant les tensions entre la forme et la fonction, entre l'intérieur et l'extérieur, la fluidité spatiale est un outil majeur du sens (= sémantique) de l'architecture.
fluidite des espaces villa Savoye à Poissy par Le Corbusier en 1931
En plus, les architectes peuvent apporter des réponses novatrices aux enjeux climatiques qui vont marquer les décennies à venir. Avec des températures de plus en plus élevées et un climat globalement plus continental, comment assurer le confort tout en diminuant le coût énergétique d'exploitation des espaces de la vie des humains toujours plus nombreux ?
Par exemple en privilégiant un espace intermédiaire entre les espaces intérieurs et extérieurs : « entre dedans et dehors ». L'art de construire ne serait pas seulement des volumes fermés (le « plein ») mais résiderait aussi dans la manière de ne pas fermer l’espace : les loggia, terrasses, patios, auvents et galeries couvertes...

Plutôt que des barrières étanches, les parois deviennent des filtres qu'il faut accumuler, et entre lesquels nous habitons, et vivons mieux. Aujourd'hui les techniques et les matériaux ont évolué d'une manière telle que ces beautés prouvent leur efficacité lorsqu'elles sont restaurées après leur inscription au Patrimoine Universel de l'UNESCO pour beaucoup d'entre-elles.
À différents niveaux leurs beautés sont réelles !

La fluidité des espaces entre dedans et dehors, ou « à la fois dedans et dehors », avec la villa Savoye à Poissy par Le Corbusier en 1931 :


La villa Savoye est le premier (et le seul jusqu'à présent) bâtiment en France dont la procédure de classement « Monument Historique » a été entamée du vivant de son architecte, en 1963.
Cet édifice remarquable exprime autant que possible les cinq points de la définition de l'architecture moderne que Le Corbusier publie en 1927 :
bioclimatique fluidité des espaces : villa Savoye à Poissy par Le Corbusier en 1931 : l'architecture moderne en 5 points
- la construction sur pilotis, ce qui limite les remontées d'humidité, diminue l'impact sur le sol et organise la fluidité de l'espace extérieur sous la construction ;
- le toit-terrasse, ce qui permet d'affecter ce supplément de surface utile à la pratique des habitants/usagers : jardin, solarium, loisirs et sports, etc. en diminuant corrélativement la consommation foncière ;
- le plan libre rendu possible par la structure poteaux-dalle, laquelle supprime les murs et refends porteurs. L'organisation intérieure n'est plus aussi fortement contrainte et cette souplesse facilite le ré-aménagement par modification des cloisons : le changement d'usage est permis ;
- la façade libre dont la contruction légère en « mur-rideau » repose sur les débords des dalles en porte-à-faux par rapport aux poteaux intérieurs : plus de linteaux, liberté d'organisation des fenêtres et ouvertures de façade non pas en fonction d'impératifs mécaniques mais d'impératifs de composition esthétique, etc. ;
- la fenêtre horizontale en bandeau, qui est justement le symbole d'un nouvel ordre esthétique en renouvellant le rapport entre l'intérieur et l'extérieur, rapport désormais beaucoup plus étroit.
maison « Dom-Ino » par Le Corbusier en 1914
Cette approche théorique alimente la réflexion « hygiéniste » du début du XXe siècle qui vise à améliorer la qualité de la vie des humains par une architecture et un urbanisme adaptés aux besoins physiologiques de santé publique, et non pas seulement soumis à la maximisation des profits à court terme dont les « Mietskasernen » avaient fourni l'exemple en Allemagne entre 1870 et 1914.
Force est de reconnaître que les techniques de construction de l'époque ne permettaient pas d'atteindre tous les objectifs visés. Mais aujourd'hui, les matériaux d'isolation thermique comme phonique des murs comme des cloisons et des fenêtres, les matériaux et techniques d'étanchéïté des toitures-terrasse, les pompes-à-chaleur réversibles, etc. ont atteint des performances telles que les espaces proposés par les architectes modernes en général et Le Corbusier en particulier sont particulièrement valorisés par la demande et les listes d'attente.
bioclimatique fluidite des espaces villa Savoye à Poissy par Le Corbusier en 1931 : angle nord-ouest
L'angle nord-ouest :
bioclimatique fluidite des espaces villa Savoye à Poissy par Le Corbusier en 1931 : angle nord-ouest
bioclimatique fluidite des espaces villa Savoye à Poissy par Le Corbusier en 1931 : angle nord-ouest
La façade sud :
bioclimatique fluidite des espaces villa Savoye à Poissy par Le Corbusier en 1931 : façade sud
bioclimatique fluidite des espaces villa Savoye à Poissy par Le Corbusier en 1931 : façade sud

C'est le travail de composition qui érige la construction en architecture : « L'architecture est le jeu savant, correct et magnifique, des volumes assemblés sous la lumière » pour citer Le Corbusier qui revendiquait par ailleurs de construire des « Machines à Habiter ». Avec ces transparences diversifiées, avec ces subtiles assymétries relevées par la lumière solaire, avec cette apparente régularité et cette rigueur graphique qui mettent en valeur chaque détail original, n'avons-nous pas là « une beauté pleine de grandeur » ? :
bioclimatique fluidite des espaces villa Savoye à Poissy par Le Corbusier en 1931 : façade nord d'entrée
L'entrée est au Nord ; on se glisse à l'abri sous le bâtiment entre les pilotis. La paroi de verre n'est pas porteuse d'où le nom de « mur-rideau » donné à ces cloisons entre l'intérieur et l'extérieur. Ici, cette cloison de verre donne à voir depuis l'extérieur l'organisation des circulations intérieures :
bioclimatique fluidite des espaces villa Savoye à Poissy par Le Corbusier en 1931 : façade nord d'entrée
La façade nord d'entrée :
bioclimatique fluidite des espaces villa Savoye à Poissy par Le Corbusier en 1931 : façade nord d'entrée
Paradoxalement la porte a l'air plus "solide" que les parois dans lesquelles elle est ouverte :
bioclimatique fluidite des espaces villa Savoye à Poissy par Le Corbusier en 1931 : porte nord d'entrée

Les plans de la villa Savoye :
bioclimatique fluidite des espaces villa Savoye à Poissy par Le Corbusier en 1931 : plans des Rez-de-Chaussée, bel étage et toit-terrasse
Sections :
bioclimatique fluidite des espaces villa Savoye à Poissy par Le Corbusier en 1931 : sections nord-sud sur les circulations verticales
bioclimatique fluidite des espaces villa Savoye à Poissy par Le Corbusier en 1931 : sections

L'escalier intérieur et les rampes inclinées sont traités avec le souci de la qualité des formes :
bioclimatique fluidite des espaces villa Savoye à Poissy par Le Corbusier en 1931 : escalier intérieur au rez-de-chaussée
bioclimatique fluidite des espaces villa Savoye à Poissy par Le Corbusier en 1931 : escalier intérieur
L'escalier intérieur au rez-de-chaussée :
bioclimatique fluidite des espaces villa Savoye à Poissy par Le Corbusier en 1931 : escalier intérieur
L'escalier intérieur au bel étage, vue vers les chambres :
bioclimatique fluidite des espaces villa Savoye à Poissy par Le Corbusier en 1931 : escalier intérieur au bel étage, vue vers les chambres

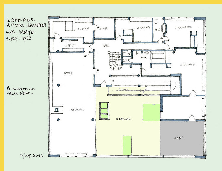
Le plan du bel étage :
bioclimatique fluidite des espaces villa Savoye à Poissy par Le Corbusier en 1931 : plan du bel étage

Au bel étage, la partie "nuit" :
entre la chambre principale à gauche et la loggia à droite :
bioclimatique fluidite des espaces villa Savoye à Poissy par Le Corbusier en 1931 : entre la chambre principale à gauche et la loggia à droite
La salle de bains de la chambre principale au fond :
bioclimatique fluidite des espaces villa Savoye à Poissy par Le Corbusier en 1931 : salle de bains de la chambre principale au fond
bioclimatique fluidite des espaces villa Savoye à Poissy par Le Corbusier en 1931 : salle de bains de la chambre principale
L'escalier intérieur au bel étage, vue vers les chambres :
bioclimatique fluidite des espaces villa Savoye à Poissy par Le Corbusier en 1931 : escalier intérieur au bel étage, vue vers les chambres

Au Nord-Est du bel étage au débouché de l'escalier, la cuisine :
bioclimatique fluidite des espaces villa Savoye à Poissy par Le Corbusier en 1931 : cuisine dans l'angle nord-est

Au Nord du bel étage, la partie "jour". Le séjour s'ouvre au Sud sur une vaste terrasse, et au Nord au-travers de la fenêtre-bandeau vers les arbres ensoleillés :
bioclimatique fluidite des espaces villa Savoye à Poissy par Le Corbusier en 1931 : le séjour s'ouvre au Sud sur une vaste terrasse avec au fond une loggia ombragée
bioclimatique fluidite des espaces villa Savoye à Poissy par Le Corbusier en 1931 : le séjour s'ouvre au Sud sur une vaste terrasse
Le séjour s'ouvre au Sud sur une vaste terrasse :
bioclimatique fluidite des espaces villa Savoye à Poissy par Le Corbusier en 1931 : le séjour s'ouvre au Sud sur une vaste terrasse

Au Sud de la terrasse, une loggia couverte est largement ouverte au Nord, idéalement fraîche en été :
bioclimatique fluidite des espaces villa Savoye à Poissy par Le Corbusier en 1931 : la loggia de la terrasse vue depuis le séjour
La terrasse vue depuis la loggia :
bioclimatique fluidite des espaces villa Savoye à Poissy par Le Corbusier en 1931 : la terrasse vue depuis la loggia
Les rampes d'accès au solarium :
bioclimatique fluidite des espaces villa Savoye à Poissy par Le Corbusier en 1931 : les rampes d'accès au solarium
Au-dessus du séjour, la rampe d'accès au solarium fait changer la perspective offerte par une fenêtre qui encadre la vue :
bioclimatique fluidite des espaces villa Savoye à Poissy par Le Corbusier en 1931 : les rampes d'accès au solarium
Le solarium :
bioclimatique fluidite des espaces villa Savoye à Poissy par Le Corbusier en 1931 : le solarium

Les photos de chantier montrent que la construction est très loin d'être celle en béton armé banché à laquelle l'esthétique moderne fait croire :
fluidite des espaces villa Savoye à Poissy par Le Corbusier en 1931 : photos de chantier de construction 1928-1930
Photos de chantier de construction 1928-1930 :
fluidite des espaces villa Savoye à Poissy par Le Corbusier en 1931 : photos de chantier de construction 1928-1930
fluidite des espaces villa Savoye à Poissy par Le Corbusier en 1931 : photos de chantier de construction 1928-1930

Les vrais moyens que Le Corbusier met en oeuvre ne sont pas les billets de banque qui tapisseraient les murs, mais l'agencement des espaces que les parois limitent, ou non, justement ! Les matières ne sont pas splendides mais la composition plastique, les jeux d'ombre et de lumière le sont !

D'autres informations ?
◄= poursuivez en visitant



RETOUR VERS LE HAUT DE CHAPITRE ▼
conférence de Frédéric Morin sur les maisons iconiques d'architectes vers une belle architecture bio-climatique adaptée au réchauffement

complété et mis à jour le 17 août 2025
mentions-légales


DROIT DES IMAGES :
Lorsqu'il a été enregistré
par son auteur dans
les métadonnées associées
à chaque image numérique,
le nom de chaque auteur ainsi connu
est mentionné dans la légende
qui apparaît lorsqu'on survole la photo
avec le curseur de la souris.

Si vous souhaitez que l'une de vos photos
soit supprimée de ce site pédagogique
promouvant l'intelligence et l'ingéniosité,
les qualités techniques et esthétiques du
patrimoine architectural mondial
dans le cadre du "FAIR USE" et des
conditions de l'exception pédagogique
d'utilisation des photos,
merci de contacter le webmaster :
ici
elle sera supprimée sans délai.





PARTAGE CULTUREL
HISTOIRES
D'ARCHITECTURES



terrasse pergola bioclimatique saillans vue 3 becs foret saou www.frederic-morin-salome.fr

.

pour contacter Frédéric Morin
architecte-conférencier :
morin-salome@orange.fr


DROIT DES IMAGES :
Lorsqu'il a été enregistré
par son auteur dans
les métadonnées associées
à chaque image numérique,
le nom de chaque auteur ainsi connu
est mentionné dans la légende
qui apparaît lorsqu'on survole la photo
avec le curseur de la souris.

Si vous souhaitez que l'une de vos photos
soit supprimée de ce site pédagogique
promouvant l'intelligence et l'ingéniosité,
les qualités techniques et esthétiques du
patrimoine architectural mondial
dans le cadre du "FAIR USE" et des
conditions de l'exception pédagogique
d'utilisation des photos,
merci de contacter le webmaster :
ici
elle sera supprimée sans délai.



RETOUR VERS
LES AUTRES
CONFERENCES DE
FREDERIC MORIN
cliquez ici

.
Conférences proposées
dans le cadre des nombreuses
Universités Populaires de la Drôme
ou à la
Maison de l'Architecture de la Drôme

Maison de l'Architecture de la Drôme logo
Association Loi 1901
Maison des Têtes
57, Grande Rue
26000 VALENCE
contact
.

LA FLUIDITÉ DES ESPACES ENTRE DEDANS ET DEHORS, OU « À LA FOIS DEDANS ET DEHORS », AVEC L'ARCHITECTURE MODERNE DEPUIS 1900 JUSQU'À 2020 :

ARCHITECTURE et CLIMAT
Fluidité des espaces
conference sur la fluidite des espaces dans l'architecture moderne
Adaptation climatique
Architecture moderne 1900-1980

ARCHITECTURE et CLIMAT
Fluidité des espaces
conference sur la fluidite des espaces dans l'architecture contemporaine
Adaptation bioclimatique
Architecture contemporaine 1980-2019

ARCHITECTURE et CLIMAT
l'adaptation aux changements climatiques par la fluidité des espaces : 
  l'exemple des palais orientaux ; conférence de Frédéric Morin
l'adaptation des palais orientaux


ARCHITECTURE des DESERTS
conférence de Frédéric Morin sur l'architecture traditionnelle bioclimatique dans les zones désertiques
  l'adaptation aux changements climatiques : les solutions traditionnelles en Iran
adaptation des maisons en Iran


MAISONS D'ARCHITECTES
conférence de Frédéric Morin sur les maisons iconiques d'architectes vers une belle architecture bioclimatique adaptée au réchauffement
adaptation bioclimatique


.
Robie House / Wright
Robie House Chicago par Wright en 1909
Chicago (Ill) 1909

Barnsdall House / Wright
Hollyhock Barnsdall House Los Angeles par Wright en 1909
Los Angeles CA) 1921

Kings Road Chase / Schindler
Chase-Schindler House Kings Road Los Angeles par Schindler en 1922
Los Angeles (CA) 1922

Lowell Beach House / Schindler
Lowell Beach House à Newport Beach par Schindler en 1926
Newport Beach (CA) 1926

Mueller Haus / Loos
villa Mueller à Prague par Loos en 1930
Prague (CZ) 1930

Tugendhat / Mies-vd-Rohe
villa Tugendhat à Brno par Mies van der Rohe en 1930
Brno (CZ) 1930

Villa Savoye / Le Corbusier
Villa Savoye Le Corbusier Poissy 1931
Poissy 1931

Winternitz Haus / Loos
villa Winternitz à Prague par Loos en 1932
Prague (CZ) 1932

Fallingwater-Kaufmann / Wright
Cascade Fallingwater pour Kaufmann à Mill Run par Wright en 1939
Mill Run (Penn) 1939

Desert-Kaufmann / Neutra
Kaufmann Desert House à Palm-Spring par Neutra en 1947
Palm-Spring (CA) 1947

Solar Hemicycle / Wright
Solar Hemicycle de Jacobs à Middleton par Wright en 1948
Middleton (Wis) 1948

Walker House / Wright
Carmel House Carmel-by-Sea par Wright en 1948
Carmel-by-Sea (CA) 1948

Weiss House / Kahn
Weiss+Morton House à Norristown par Kahn en 1950
Norristown (Penn) 1950

Farnsworth / Mies-vd-Rohe
Farnsworth House à Plano par Mies van der Rohe en 1953
Plano (Ill) 1951

Sarabhai House / Corbusier
Sarabhai House à Ahmedabad par Le Corbusier en 1955
Ahmedabad (Gujarat) 1955

Shodhan House / Le Corbusier
Shodhan House à Ahmedabad par Le Corbusier en 1956
Ahmedabad (Gujarat) 1956

palais Alvorada / Niemeyer
palais Alvorada à Brasilia par Niemeyer en 1958
Brasilia 1958

Escherick House / Kahn
Escherick House à Philadelphia par Kahn en 1961
Philadelphia (Penn) 1961

Sheats-Goldstein / Lautner
villa Sheats-Goldstein à Los Angeles par Lautner en 1963
Los Angeles 1963

Silvertop House / Lautner
villa Silvertop à Los Angeles par Lautner en 1963
Los Angeles 1963

Fisher House / Kahn
Fisher House à Hatboro par Kahn en 1967
Hatboro (Penn) 1967

Stevens House / Lautner
Stevens beach-house à Malibu par Lautner en 1968
Malibu (CA) 1968

Korman House / Kahn
Korman House à Fort Washington par Kahn en 1973
Fort Washington (Penn) 1973

Villa Arango / Lautner
Villa Arango à Acapulco par Lautner en 1973
Acapulco (Mexique) 1973

Cité Universitaire / Kahn
Students Housing Indian Institut of Management à Ahmedabad par Kahn en 1974
Ahmedabad (Gujarat) 1974

Maison Gilardi / Barragan
house Gilardi par Barragan en 1976
Mexico 1976

immeuble Kitagana / SANAA=Sejima
logements collectifs de Kitagana à Mokuso-Gifu par Sejima en 1998
Gifu-Mokuso (JP) 1998

Bioclimatic House / Ruiz-Larrea
Maison Bioclimatique (Bioclimatic Vivienda) à Tenerife par Ruiz-Larrea en 2003
Tenerife (Canaries) 2003

Tropical House / Camarim
Tropical House à Mundau (Brazil) par Camarim en 2008
Mundau (Brazil) 2008

F-White House / Yamamoto
F-White House à Kashiwa par Yamamoto en 2009
Kashiwa (Japon) 2009

RAAS Hotel / Lotus = A+Ch+T
Hotel Raas-Jodhpur par Lotus = Arora+Choksi+Talwar en 2011
Jodhpur (Rajasthan) 2011

Friendship Center / Chowdhury
Gaibandha Friendship Center par Chowdhury en 2011
Gaibandha (Bangladesh) 2011

maison Gnana Illam / Jerald
Farmer House Gnana Illam à Ammapatti (Tamil Nadu) par Jerald en 2012
Ammapatti (Inde) 2012

Habitats ruraux / Kere & Switzer
réalisations africaines de Kere au Burkina Faso et Switzer au Ghana en 2013
Burkina Faso & Ghana 2013
White-Cave House / Yamamoto
White Cave House à Kanazawa par Yamamoto en 2013
Kanazawa (Japon) 2013

House 40 Knots / Madjdabadi
logements collectifs immeuble d'habitation House of 40 Knots à Teheran par Madjdabadi+MashhadiMirza en 2014
Teheran 2014

Tropical-Box House / WHBC Ang
Chempenai Tropical Box House à Kuala-Lumpur (Malaisie) par WHBC Ang en 2015
Kuala-Lumpur (Malaisie) 2015

Great Wall Housing / Rosselli
Great Wall Housing in Western Australia par Rosselli en 2015
West Australia 2015

Little-H-Big-Terrace / Yamamoto
Little House Big Terrace à Tokyo par Yamamoto en 2015
Tokyo 2015

operation Villa Verde / Aravena
collectivité de demi-logements d'urgence Villa Verde à Constitucion (Chili) par Aravena en 2016
Constitucion (Chili) 2016

Wafra Wind Tower / AGi
Wafra Wind-Tower vertical housing à Kuwait par Perez-Goicoechea+Abulhasan en 2017
Kuwait 2017

Imm. Saadat Abad / Kazemianfard
logements collectifs immeuble d'habitation Saadat Abad à Teheran par Kazemianfard en 2018
Teheran 2018

Brick House / Srinivas
Brick House à Trivandrum (Kerala-Inde) par Srinivas en 2019
Kerala (Inde) 2019

18 Screens House / Puri
18 Screens House au Uttar-Pradesh par Puri en 2019
Lucknow (Uttar-Pradesh) 2019

House Sridhar / P+S+P
Sridhars House à Bangalore par Pradhan+Sethi+Philip en 2020
Bangalore (Inde) 2020

.
.

ARCHITECTURE MODERNE
histoire de l'architecture moderne en Allemagne jusqu'en 1933 ; conference de Frederic Morin
LES APPORTS ALLEMANDS


LES PONTS histoire et techniques de construction des ponts depuis l'Antiquité romaine jusqu'à aujourd'hui ; conference de Frederic Morin
HISTOIRE & TECHNIQUES


MUSEES DU Architectures des musées du Sud-Est de la France ; conference de Frederic Morin
SUD-EST DE LA FRANCE


MATERIAUX de CONSTRUCTION
conference 2019 histoire techniques fabrication des materiaux de construction ; conference de Frédéric Morin
histoire de leur fabrication


ARCHITECTURE CHRETIENNE
conference 2019 histoire de l'architecture chrétienne le long du pelerinage de Saint-Jacques de Compostelle
sur les chemins de St-Jacques



RETOUR VERS
LES AUTRES
CONFERENCES DE
FREDERIC MORIN
cliquez ici

.